Yoxford, Saxmundham

£600,000Guide Price
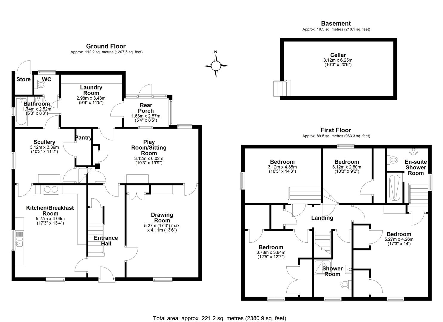
4 Bedrooms
3 Bathrooms
2 Reception Rooms
House - Detached
Reference: 21093

An Elegant detached home in the village of Yoxford. Often referred to as “The Garden of Suffolk”, the pretty village of Yoxford lies just off the A12 Great Yarmouth to London Road, and was in the 19th Century a coaching post on the London turnpike. Today Yoxford is a much sought after and well served typically Suffolk village centring around its fine parish church of St Peters with its grand tower and spire. The village has the old established Horner’s grocer, public houses, restaurants, antique shops, doctors surgery and school and is well served by public transport. The nearby railway halt at Darsham lying on the East Suffolk line gives regular services to Ipswich and London Liverpool Street.

Aldeburgh Office Sales
134, High Street
Aldeburgh
Suffolk
IP15 5AQ
Open in Google Maps

FREE Instant Online Valuation in just 60 SECONDS

Click Here