Aldeburgh

£575,000Offers In Excess Of
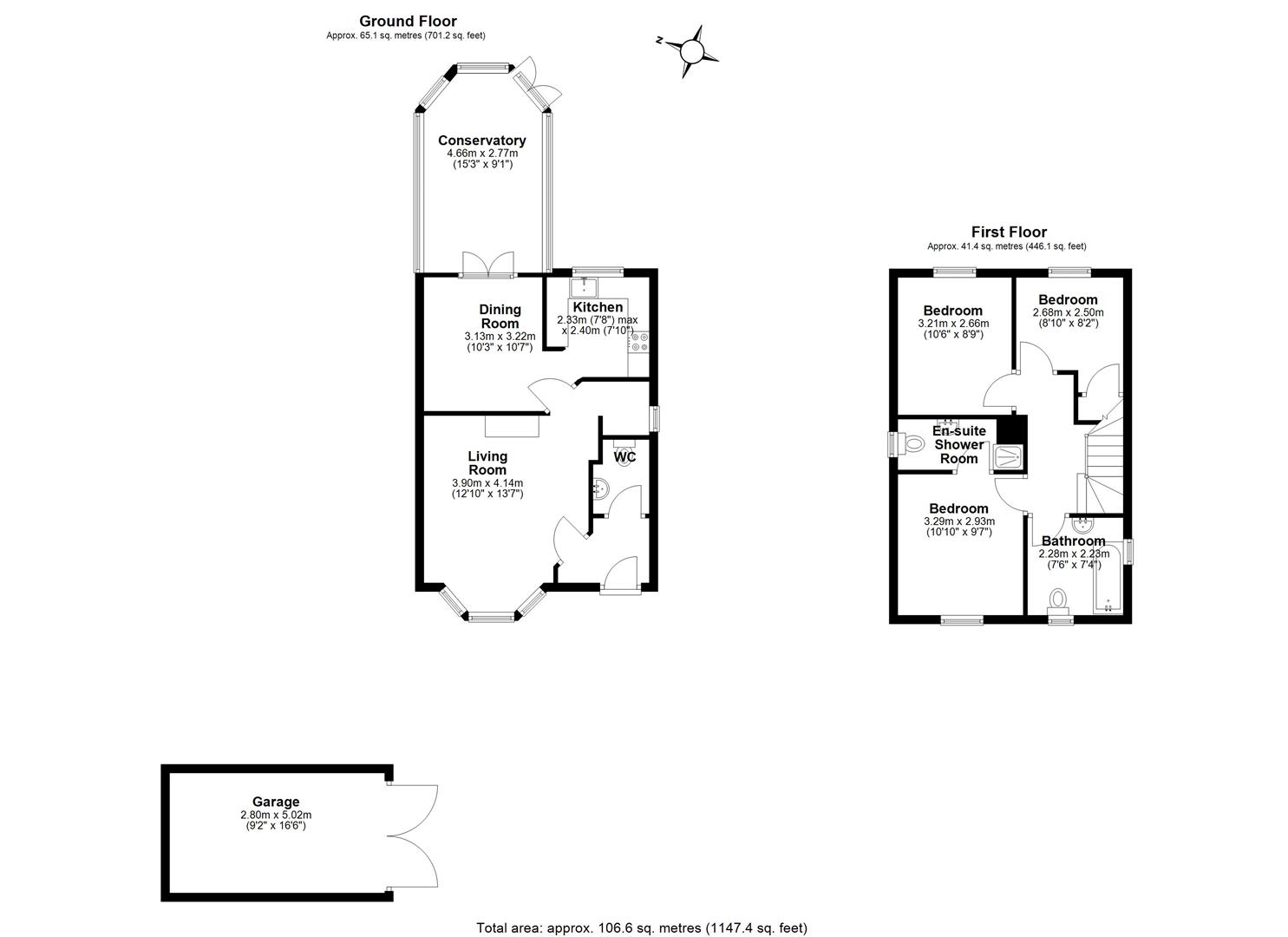
3 Bedrooms
2 Bathrooms
2 Reception Rooms
House - Detached
Reference: 21009

The property stands in a private close of two houses walking distance from the High Street and sea front of Aldeburgh, an extremely popular seaside town. Renowned for its connections with the composer Benjamin Britten, its sailing on the Rivers Alde and Ore and its heathland golf course. The High Street features an eclectic range of independent shops and brand name boutiques, restaurants and galleries, along with an independent cinema. The town is close to open countryside and nature reserves which are connected through a vast network of public footpaths. Situated within the Suffolk Heritage Coast, an Area of Outstanding Natural Beauty, Aldeburgh is approximately two hours drive from London and the nearest train station is seven miles away at Saxmundham which, with a change at Ipswich, connects to London Liverpool Street.

Aldeburgh Office Sales
134, High Street
Aldeburgh
Suffolk
IP15 5AQ
Open in Google Maps

FREE Instant Online Valuation in just 60 SECONDS

Click Here