Bramfield

£2,650PCM
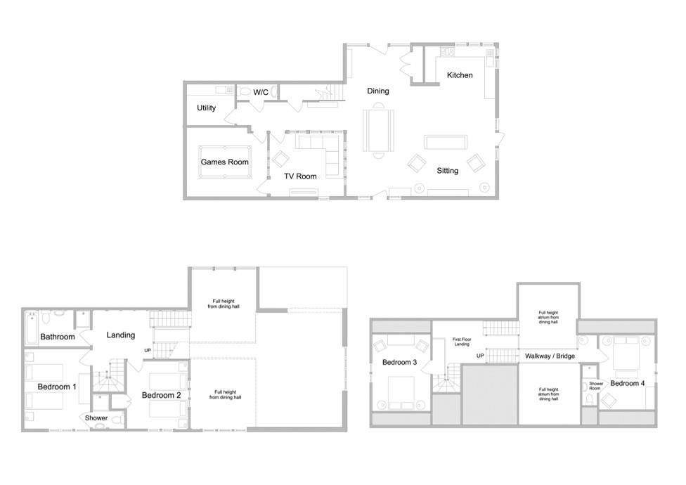
4 Bedrooms
3 Bathrooms
3 Reception Rooms
Barn Conversion
Reference: 20985

An extraordinary four bedroom barn conversion set within breath-taking countryside on the outskirts of the popular rural village of Bramfield.
OFCH. EPC D.

Saxmundham Office Lettings
Ashford House, High Street
Saxmundham
Suffolk
IP17 1AB
Open in Google Maps

FREE Instant Online Valuation in just 60 SECONDS

Click Here