The Street, Walberswick, Southwold

£775,000Guide Price
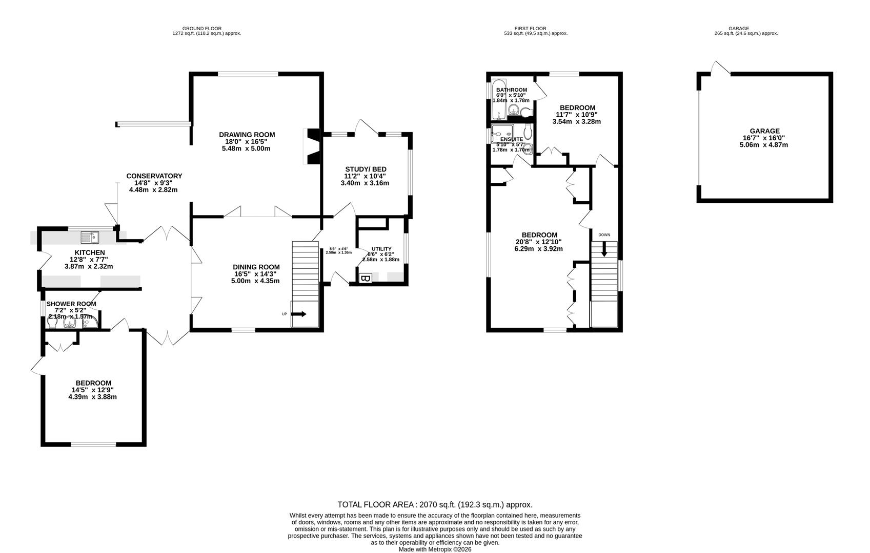
3 Bedrooms
3 Bathrooms
4 Reception Rooms
House - Detached
Reference: 21057

Walberswick is a highly sought-after coastal village, renowned for its natural beauty, unspoilt charm, and relaxed lifestyle. Situated on the Suffolk Heritage Coast, the village offers a unique blend of sandy beaches, scenic marshes, and open countryside, making it a haven for walkers, nature lovers, and those seeking a peaceful retreat. The village itself benefits from a welcoming community atmosphere, with amenities including a village shop, popular pubs, and access to a range of outdoor pursuits such as sailing, crabbing, and coastal walks. The nearby town of Southwold, just across the River Blyth, provides a wider selection of independent shops, restaurants, and cultural attractions, all within easy reach. Walberswick is also well connected for exploring the surrounding Suffolk coastline and countryside, while still offering a sense of seclusion, making it an ideal location for both permanent residence and holiday living.

Southwold Office Sales
8, Queen Street
Southwold
Suffolk
IP18 6EQ
Open in Google Maps

FREE Instant Online Valuation in just 60 SECONDS

Click Here